| LUOGO | Corso Roma – Levanto (SP) |
| PAESE | Italia |
| CLIENTE | Comune di Levanto |
| ANNO | 2015-2016 |
| DESCRIZIONE | SOU – Studio di Organizzazione Urbanistica. Progetto di massima per la trasformazione in complesso residenziale della scuola primaria in Corso Roma a Levanto. |
Gli obiettivi prioritari considerati in relazione alla ipotesi di valorizzazione degli attuali edifici scolastici attualmente in uso a Levanto, previsti per entrambi gli ambiti oggetto della trasformazione, sono legati alla previsione di trasferire in un unico sito tutte le funzioni scolastiche presenti nel Comune. Tutto questo creando nuovi edifici moderni e sicuri, capaci di dare risposte in termini di aggiornamento della didattica e risparmio energetico, grazie anche a una migliore funzionalità ed economicità gestionale, dismettendo edifici non più rispondenti alle attuali e future esigenze didattiche.

Allo scopo si prevede il rinnovamento del sistema insediativo attuale dei due ambiti di studio attraverso la trasformazione d’uso dell’edificio delle scuole primarie, tramite il recupero e il riuso dell’edificio stesso e la sostituzione dell’edificio della scuola dell’infanzia con una nuova costruzione. Entrambi gli edifici verranno quindi trasformati in nuovi complessi immobiliari a destinazione residenziale, nei quali verranno a collocarsi funzioni urbane compatibili con il tessuto esistente e in continuità con esso.

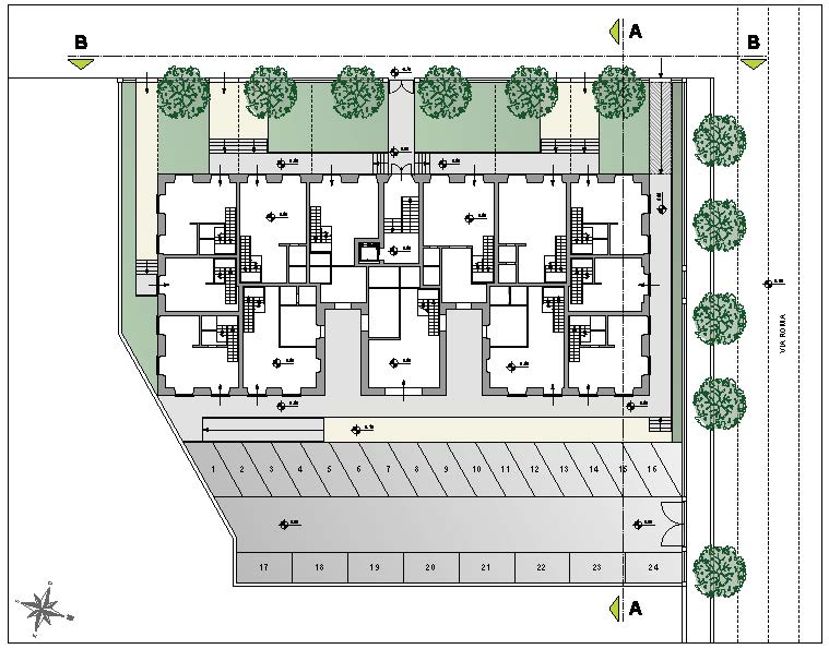
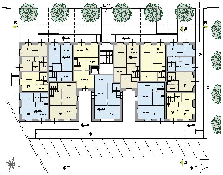
Il progetto di massima per la trasformazione dell’attuale edificio scolastico della scuola primaria, sito in Via Roma a Levanto, prevede la conservazione dell’edificio esistente e il suo adeguamento alla nuova destinazione residenziale tramite alcune modifiche interne, e in parte esterne, capaci di conservare tuttavia le caratteristiche stilistiche e tipologiche dell’edificio originario.
In particolare, all’interno dell’edificio, saranno rimodulate le quote di imposta dei solai, in modo da implementare i due attuali piani di calpestio a tre, oltre al piano mansardato, permettendo di raggiungere le altezze minime interne previste per l’uso abitativo di ciascun piano, e conservando l’altezza massima del colmo esterno dell’attuale copertura.
Le 24 abitazioni previste avranno accesso dal piano terra e dal secondo organizzandosi verticalmente su due livelli collegati internamente da scale private.

