| LUOGO | Piazza Verdi, La Spezia |
| PAESE | Italia |
| CLIENTE | Comune della Spezia |
| ANNO | 2018 |
| DESCRIZIONE | Analisi di Vulnerabilità, Progetto Definitivo ed Esecutivo, Coordinamento della sicurezza in fase di progettazione per il Miglioramento Sismico del Palazzo degli Studi “Principe Umberto” in La Spezia, sede del Liceo Ginnasio Classico Statale L.Costa e della Scuola Media Statale “U.Mazzini” |
| Luogo | Piazza Verdi, La Spezia |
| Paese | Italia |
| Cliente | Comune della Spezia |
| Anno | 2018 |
| Descrizione | Analisi di Vulnerabilità, Progetto Definitivo ed Esecutivo, Coordinamento della sicurezza in fase di progettazione per il Miglioramento Sismico del Palazzo degli Studi “Principe Umberto” in La Spezia, sede del Liceo Ginnasio Classico Statale L.Costa e della Scuola Media Statale “U.Mazzini” |
Il progetto ha lo scopo di valutare l’indice di rischio sismico IR della costruzione allo stato attuale, individuare le criticità della struttura e definire una serie di interventi strutturali mirati a ridurne la vulnerabilità (incremento di IR), raggiungendo il livello di sicurezza minimo previsto per le scuole. L’edificio intitolato al Principe Umberto, risalente all’anno 1923, presenta una planimetria generale a corte pressoché quadrata, con al centro un ampio spazio libero rettangolare, e si compone di due corpi di fabbrica principali, che si congiungono sul lato parallelo alla facciata principale, connessi alle estremità, ma distinti e così identificati:
– Corpo Palestra – Sala Dante;
– Corpo Scuola




Il progetto fu affidato all’Ufficio dei Lavori Pubblici del Comune, ed era compreso nell’ambito del vasto piano di demolizione del quartiere del Torretto. Progettista dell’opera fu l’architetto Armando Titta, che si occupò della progettazione e della parte ornamentale della Sala Dante.
L’edificio possiede quattro ingressi, una palestra, 60 aule e circa 470 m di corridoi larghi tre metri.

Il corpo palestra/Sala Dante rappresenta l’anello debole dell’intera struttura, ed è di fatto responsabile del coefficiente di rischio sismico dell’intero edificio “scuola”. Gli interventi in questa zona verteranno essenzialmente sul consolidamento delle fondazioni tramite l’allargamento delle stesse, da effettuarsi grazie all’affiancamento di cordoli in c.a., della muratura di pietrame per tutta l’altezza della palestra e dei pilastri esterni in muratura presenti lato cortile come sopra descritto.

Le aree destinate all’uso scolastico saranno oggetto di interventi volti essenzialmente a consolidare i maschi murari deboli, e a ripristinare le rigidezze delle murature eliminate, tramite la realizzazione di cerchiature con profili metallici, la chiusura di vani murari, ove necessario, e il consolidamento delle pareti trasversali di tutti i livelli dell’ala Costa e dell’ala Mazzini, a partire dalle fondazioni.
Nelle aule, gli interventi si caratterizzeranno per la realizzazione di intonaci armati di consolidamento delle murature esistenti, che non interverranno in nessun caso su elementi di pregio, per altro non presenti allo stato in nessuna delle aule interessate dalle opere, come facilmente riscontrabile nella documentazione fotografica allegata.
Tali interventi, inoltre, non influiranno in modo sostanziale né sulla distribuzione, né sulla dimensione delle aule stesse.
L’intervento più significativo parrebbe essere quello relativo alla attuale biblioteca, nella quale sarà necessario procedere alla collocazione di una cerchiatura nel punto mediano dell’ampia sala, in modo che corra senza soluzione di continuità lungo le pareti verticali e sul soffitto.


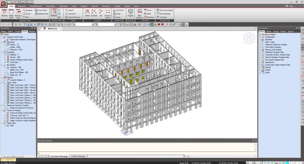
L’analisi strutturale dell’edificio è stata condotta con il metodo agli stati limite secondo il DM 17/01/2018, con l’ausilio del programma agli elementi finiti MidasGen. La capacità sismica della struttura, ovvero l’azione sismica massima sopportabile dalla struttura, è stata valutata conducendo 3 tipi di analisi:
1. Modale;
2. Analisi cinematica
3. Analisi statica non lineare (Pushover)
La prima con lo scopo di individuare i modi di vibrare fondamentali della struttura, permettendo di controllarne il comportamento dinamico, e verificare la correttezza di schematizzazione del modello; la seconda per stimare le vulnerabilità legate all’innesco di meccanismi locali, ritenuti compatibili con i vincoli effettivi rilevati nella struttura; la terza per stimare la vulnerabilità (resistenza e reformazione nel piano), quindi la capacità sismica della struttura nel presente studio viene stimata attraverso un’analisi sismica statica non lineare, ovverosia l’ANALISI PUSHOVER.



Per gli elementi finiti dell’edificio si è scelto di adottare il modello a telaio equivalente, che si presta bene per la modellazione della struttura in oggetto, data la regolarità delle aperture nello sviluppo in pianta e, soprattutto, in altezza, che permettono l’individuazione di maschi murari continui da terra a tetto. L’analisi pushover è stata condotta secondo il metodo del controllo di forza rispetto, al più canonico e comune metodo basato sul controllo di spostamento.