| LUOGO | La Spezia |
| PAESE | Italia |
| CLIENTE | Spezia Risorse |
| ANNO | 2017 |
| DESCRIZIONE | Progettazione degli impianti elettrici, meccanici e fonti rinnovabili per la sede di Spezia Risorse Spa. Riqualificazione del blocco ex palestra. Modellazione con tecnologia BIM. |
Il complesso di via Pascoli è diviso in due corpi ben distinti e indipendenti: un palazzo di inizio ‘900 e un fabbricato degli anni ’80 che ospitava una palestra. I due edifici sono apparentemente agli antipodi.
Il palazzo storico, in muratura portante, ha una pianta quadrata e si sviluppa su quattro piani che coprono una superficie lorda di piano complessiva di oltre 1.700 metri quadrati. Il volume a fianco è invece realizzato in calcestruzzo armato, presenta una pianta rettangolare di 20 x 11 metri, e si eleva 6 metri da terra su un unico livello. In una prima fase lo studio ha analizzato lo stato di manutenzione degli edifici in vari sopralluoghi, durante i quali è stato possibile rilevare il degrado del fabbricato principale, presente soprattutto nel seminterrato e nell’ultimo piano, attualmente inagibile. I maggiori problemi riscontrati riguardavano infiltrazioni in corrispondenza delle finestre, risalita d’acqua dalle pareti, distacchi d’intonaco, serramenti usurati, soffitti parzialmente crollati e impianti obsoleti. Il progetto di riqualificazione proposto da studio Fabrica prevede sostanzialmente la riorganizzazione degli spazi interni, il miglioramento energetico degli impianti e l’eliminazione del degrado delle facciate, messe in sicurezza nell’estate dello scorso anno.

Al fine di eliminare l’umidità di risalita e isolare adeguatamente i muri contro terra è stata pensata un’intercapedine aerata (scannafosso) lungo il perimetro della palazzina uffici e dell’ex palestra. Le coperture, rinforzate con profilati d’acciaio che rendono agibili i tetti piani, sono impermeabilizzate, coibentate, e sulla superficie sono previsti pannelli fotovoltaici oltre a un sistema di intercettazione, convogliamento e smaltimento delle acque piovane. Sulla facciata del palazzo novecentesco saranno ripristinati gli intonaci, le cornici, le modanature dei marcapiano e dei fregi, cercando di riportare il manufatto al suo aspetto originale, in accordo con la stazione appaltante e con gli uffici comunali preposti. Per i tamponamenti esterni dell’ex palestra, di più recente concezione e priva di oggettiva valenza architettonica, è prevista una coibentazione a cappotto, con rifiniture analoghe al fabbricato principale.

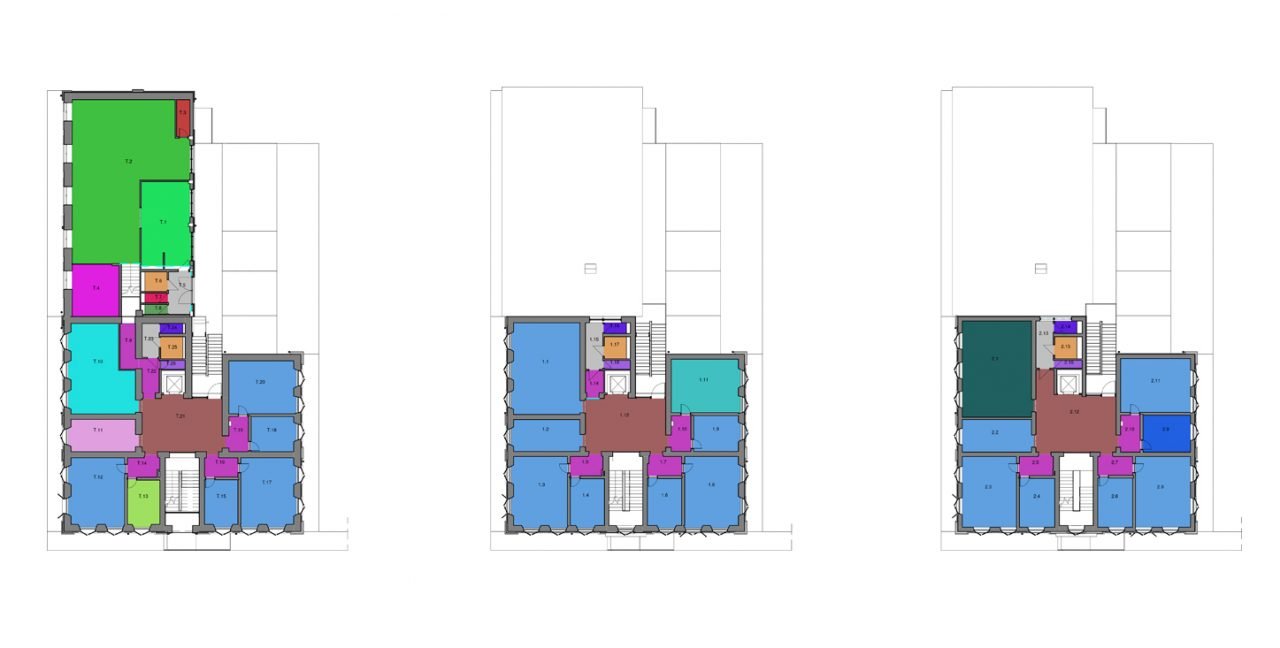
I due volumi sono messi in collegamento da una scala esterna, che permette l’accesso ai vari ambienti e alle coperture piane. Nell’edificio principale sono stati previsti gli uffici dirigenziali, mentre la manica bassa sarà destinata a sala d’attesa e all’accoglienza. Gli ambienti interni saranno completamente riorganizzati. Oltre alla nuova distribuzione degli uffici saranno infatti anche ridimensionati i servizi igienico – sanitari, per soddisfare le esigenze di utilizzo nei vari piani in rapporto agli utenti previsti.


Gli impianti verranno completamente nascosti da un sistema di controsoffittatura. Tale soluzione consente estrema flessibilità di installazione, riduzione dei costi di manutenzione e risultati estetici gradevoli, con un rapporto costi – benefici decisamente concorrenziale rispetto a soluzioni più tradizionali. Per quanto riguarda gli aspetti legati al risparmio energetico, il progetto prevede consistenti interventi che si dividono in più sottosistemi: impianti elettrici e speciali (reti dati, fotovoltaico, rilevazione incendi), impianti meccanici di climatizzazione estate – inverno, trattamento e ricambio d’aria, impianti idrici di produzione acqua calda sanitaria e scarico acque reflue. Nel progetto è stato anche studiato un riassetto degli spazi esterni. Nella corte interna, infatti, ci saranno nuovi parcheggi e percorsi pedonali di accesso alle strutture, e verrà demolita la centrale termica esistente.


Grazie all’approccio multidisciplinare e alla metodologia BIM è stato possibile controllare in ogni momento tutte le interazioni, le sovrapposizioni e le interferenze, riscontrate nella modellazione.
Il lavoro del team di progettazione è stato suddiviso in due ambiti principali: progettazione architettonica e progettazione impiantistica. Due modelli separati che hanno contribuito a costruire in modo coordinato il modello finale dell’intero intervento.

In collaborazione coi restauratori sono stati rimodellati in BIM i fregi, le lesene, le modanature e gli infissi. E grazie al modello architettonico creato sono stati esportati i dati per effettuare i calcoli e le verifiche in materia di contenimento dei consumi energetici: in questo caso è stato utilizzato il software Edilclima EC770 per gestire il file IFC e generare un file EC700. La progettazione impiantistica, che ha comportato l’implementazione di più sistemi – climatizzazione, ventilazione meccanica con recupero di energia, impianti elettrici, dati e rilevazione incendi, impianti idrici, di scarico, di produzione acqua calda sanitaria con pompa di calore e impianto fotovoltaico in copertura – è stata realizzata con flussi di informazioni e di lavoro di tipo tradizionale, coordinati però col modello BIM in un’ottica di interoperabilità, sia per quanto riguarda le informazioni di input, sia per i risultati progettuali ottenuti, riportati all’interno del modello stesso.
